
埃美柯泄壓/持壓閥9500X概述:
泄壓(ya)閥(fa):可將給水(shui)管(guan)中超(chao)過導間安(an)全設定(ding)(ding)值(zhi)(zhi)的壓(ya)力釋(shi)放,并維(wei)(wei)特(te)管(guan)中壓(ya)力在一(yi)(yi)安(an)全設定(ding)(ding)值(zhi)(zhi)以(yi)下,以(yi)防(fang)止管(guan)中高(gao)壓(ya)或突(tu)壓(ya)毀(hui)損管(guan)線(xian)或設備。可用于高(gao)層大樓消(xiao)防(fang)測試循(xun)環系(xi)統(tong)(tong),以(yi)防(fang)止水(shui)壓(ya)過高(gao)造成系(xi)統(tong)(tong)危險。掛壓(ya)間:可維(wei)(wei)持(chi)主間上(shang)游供(gong)水(shui)壓(ya)力于某一(yi)(yi)設定(ding)(ding)值(zhi)(zhi)以(yi)上(shang),以(yi)保障主間上(shang)游供(gong)水(shui)區之壓(ya)力。鑒開啟閻:裝于消(xiao)防(fang)噴(pen)淋泵出水(shui)口處,當(dang)泵出水(shui)口處壓(ya)力上(shang)升至某一(yi)(yi)設定(ding)(ding)值(zhi)(zhi)以(yi)上(shang)時(shi)此間立即開啟。
壓力等級:PN10.PN16.PN25
通徑:中50mm~中500mm
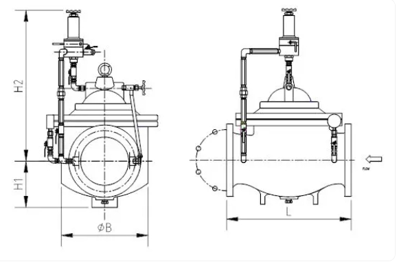
埃美柯泄壓/持壓閥9500X結構圖:

| 如果你對 埃美柯泄壓/持壓閥9500X感興趣,想了解更詳細的產品信息,填寫下表直接與廠家聯系: |